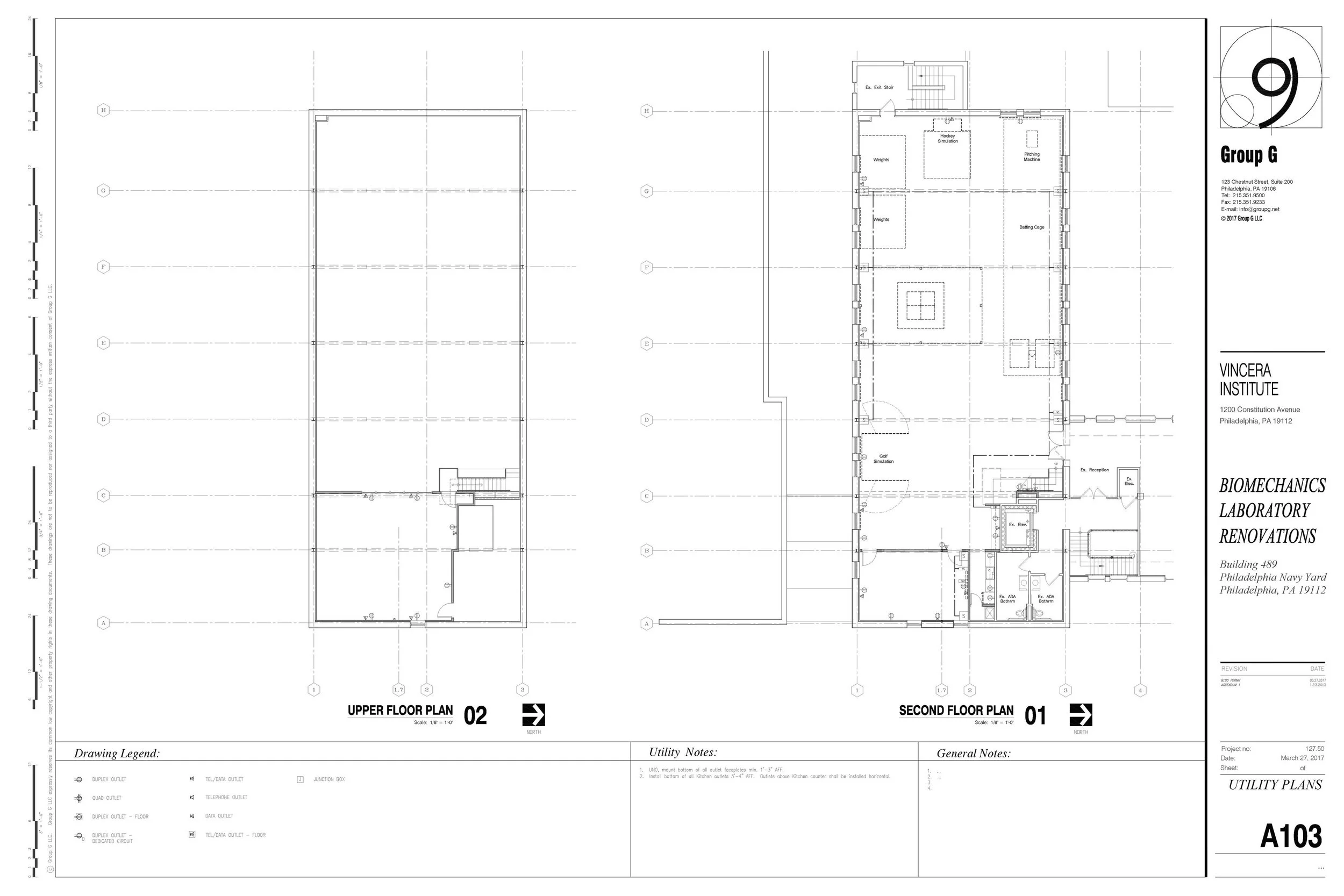
Vincera BioMech

The client came to us with an attic space that they wanted to convert into a BioMechanics Lab. My role in this project included:

  • Designing the Mezzanine and “bleacher” stair

  • Making sure the design was up to code and accessibility standards

  • Building the Sketch-Up model

  • Creating and annotating the drawing set

  • Drawing details for stair and conference room souffits

  • Selecting finish materials

Year: 2017

Client: Vincera Institute

Architect: Group G LLC

Structural Engineer: P.W. Moss & Associates Engineering

Programs Used: AutoCAD, Sketch-Up

Renovation project on the second floor of a building in the Navy Yard into a Bio-mechanics Lab with office space and small kitchen.

Some samples of work and construction photos below

Posted with permission

Vincera+Websit+Pages_Page_1.jpg
Vincera+Websit+Pages_Page_2.jpg
Vincera+Websit+Pages_Page_4.jpg
Vincera Websit Pages_Page_5.jpg
IMG_3785.JPG
IMG_4198.JPG
IMG_3793.JPG
IMG_4197.JPG