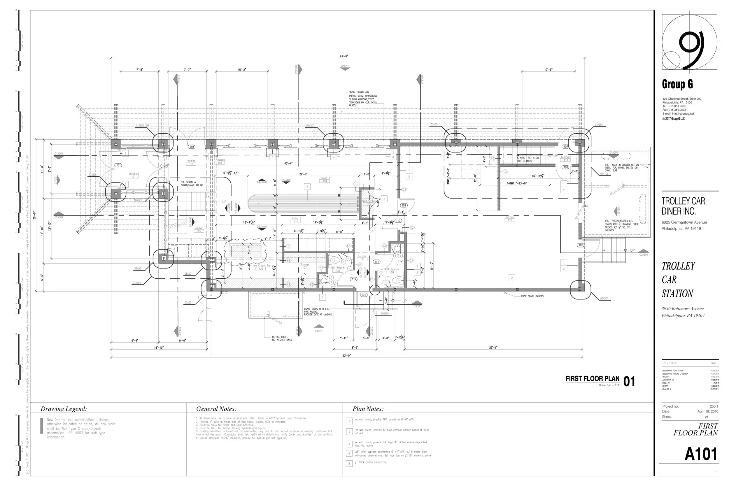
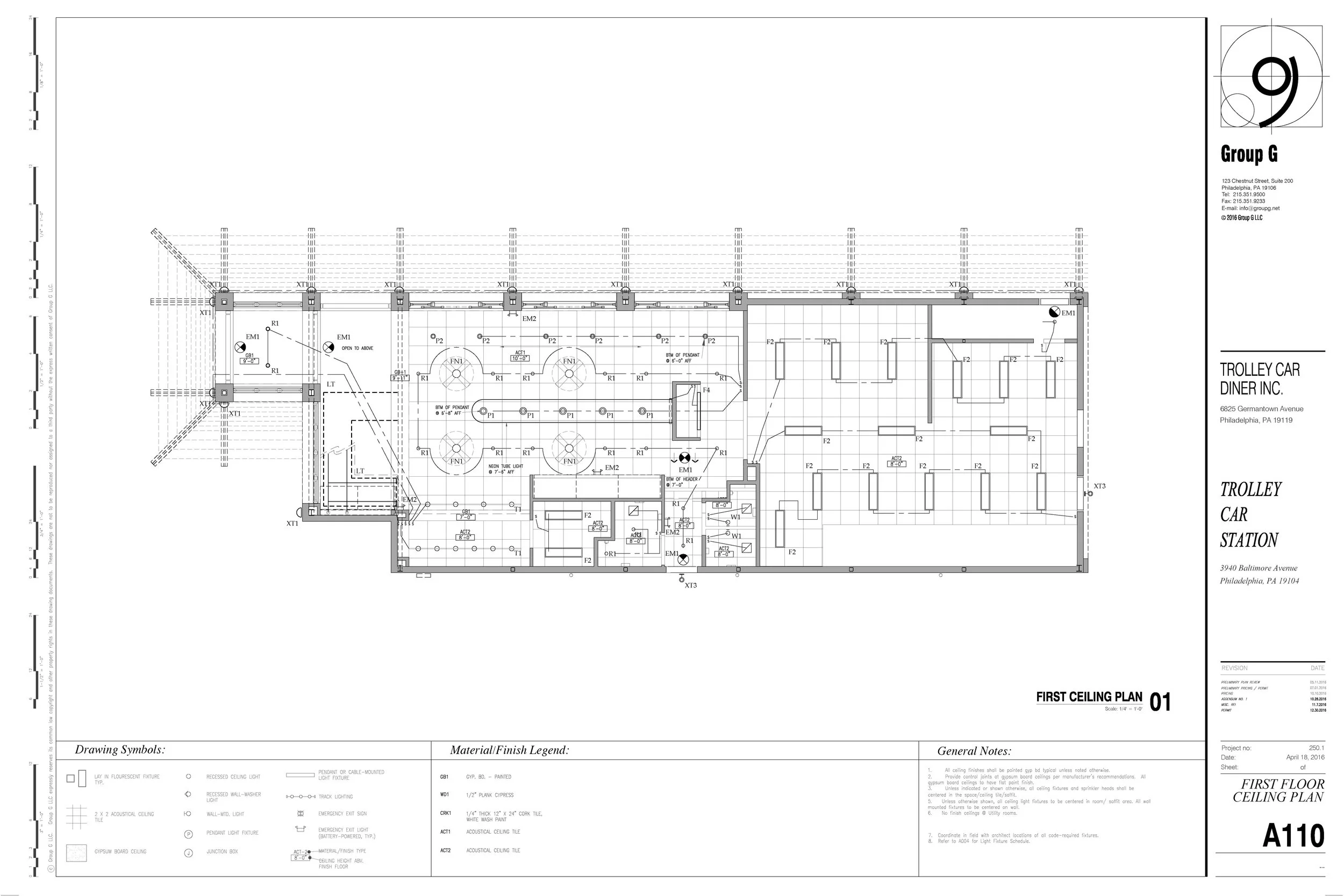
Trolley Car Station

IMG-1935.JPG

I joined this project towards the end of the design stage. My role in this project included:

  • Work with boss in designing final massing of the building

  • Making sure the design was up to code and accessibility standards

  • Building the Revit model

  • Creating and annotating the drawing set

  • Designing the trellis and fence

  • Designing lighting plan

Year: 2017

Client: Trolley Car Diner Inc.

Architect: Group G LLC

Structural Engineer: P.W. Moss & Associates Engineering

MEP Engineer: HUTEC Engineering, LLC

Programs Used: Revit, AutoCAD

New build from ground up of a restaurant next to the 40th St. Trolley Tunnel. Designed to fit within Andropogon Associates’ Ltd. landscape designed park.

Some samples of work and construction photos below

Posted with permission

Vincera+Websit+Pages_Page_1.jpg
A102.jpg
Vincera+Websit+Pages_Page_4.jpg
Vincera Websit Pages_Page_5.jpg
A201.jpg
A503.jpg
IMG_3785.JPG
IMG_4198.JPG
IMG-3340.JPG
IMG_3793.JPG