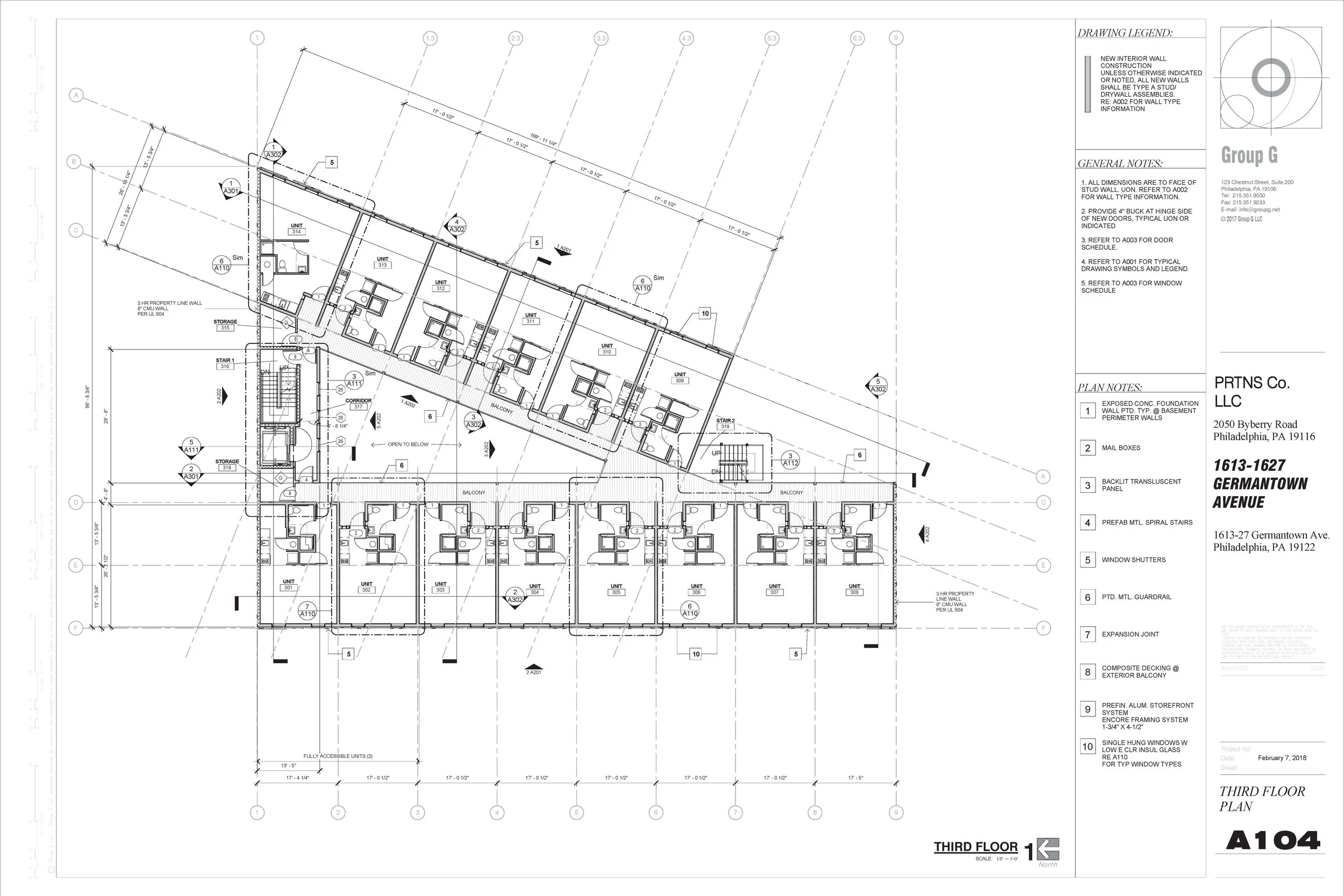
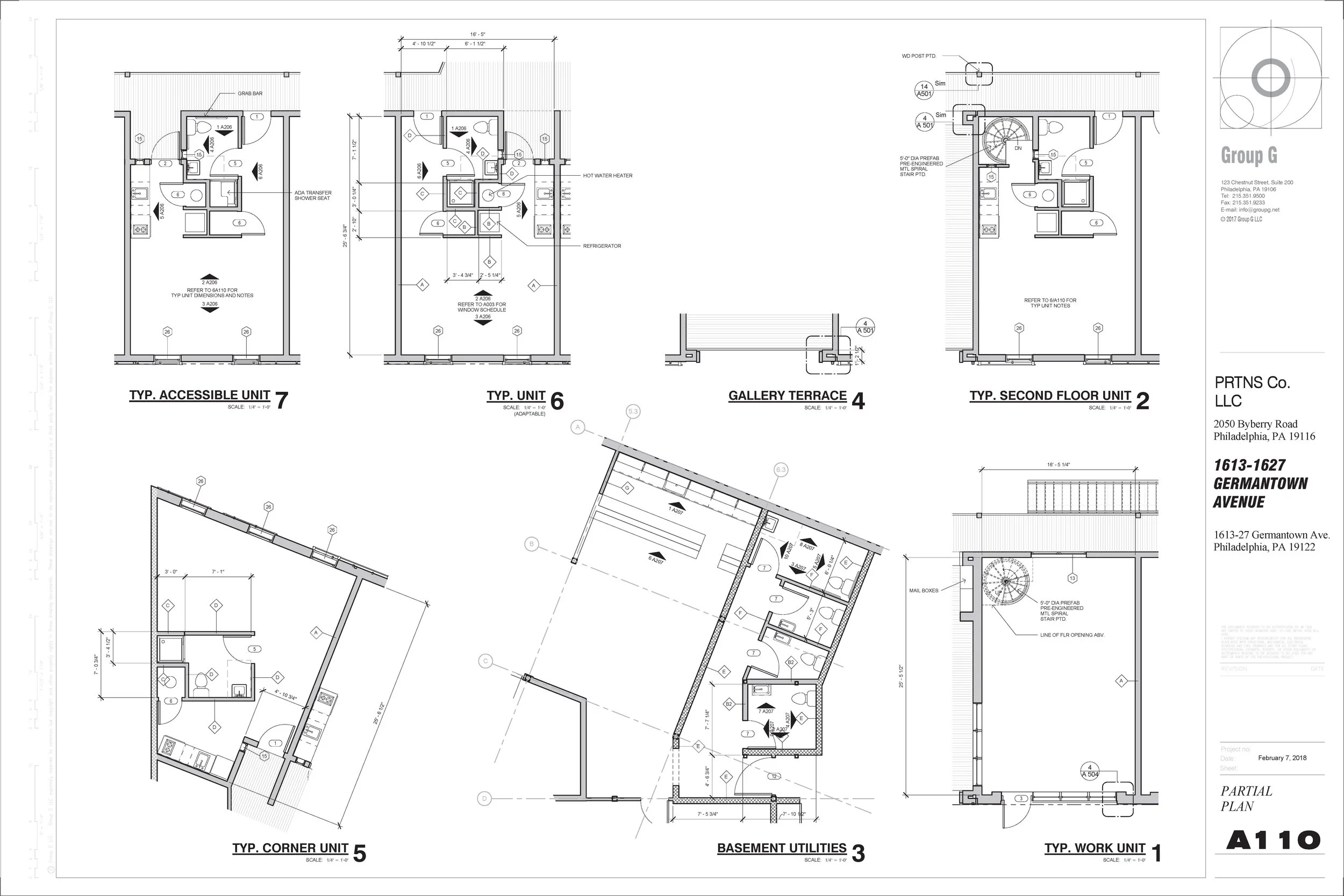
Germantown

170809_GERMANTWN MTL FACADE.jpg

The client came to us with drawings he had created in hopes that we could make it a reality. My role in this project included:

  • Making sure the design was up to code and accessibility standards

  • Building the Revit model

  • Creating and annotating the drawing set

  • Drawing details for railings, columns, and courtyard wall conditions

Year: Currently under construction

Client: PRTNS Co.

Architect: Group G LLC

Structural Engineer: P.W. Moss & Associates Engineering

Programs Used: Revit, AutoCAD, Sketch-Up

Situated between Germantown Ave and 4th St. a 4 story 47 unit apartment building sits with commercial live-work units facing Germantown Ave and a sunken courtyard.

Some samples of work, renderings and construction photos below

Posted with permission

Websit Pages_Page_1.jpg
Websit Pages_Page_2.jpg
Websit Pages_Page_3.jpg
Websit Pages_Page_4.jpg
Websit Pages_Page_5.jpg
170809_COURTYARD.jpg
170809_4TH MTL FACADE.jpg
IMG-9932.JPG
170809_FIRST FLOOR.jpg